




Composition du Logement :
3
1
1
2
156 m2
585 m2

Découvrez Votre Futur Logement aux Maisons Julie
Bienvenue dans l'une de nos maison dans les maisons Julie, où confort, espace et modernité se conjuguent pour offrir un cadre de vie remarquable. Cette maison, d'une superficie de 156 m², sur une parcelle de 585 m², est conçue pour répondre aux attentes des familles en quête d'un foyer alliant fonctionnalité et élégance.


Une Performance Énergétique Optimal : PEB A
Assurez-vous d'une efficacité énergétique maximale avec notre certification PEB A. Profitez d'un logement à haute performance énergétique, réduisant vos coûts sur votre facture et votre impact environnemental.


















A+
A++
A
B
C
D
E
F
G
kWh / (m²/an)
… 511
510 à 426
425 à 341
340 à 256
255 à 171
170 à 86
85 à 46
45 à 1
0 …
Une Performance Énergétique Optimal : PEB A
Assurez-vous d'une efficacité énergétique maximale avec notre certification PEB A. Profitez d'une maison à haute performance énergétique, réduisant vos coûts et votre impact environnemental.


Les Atouts :






Pompe à Chaleur
Ventilation Double Flux
Panneaux Photovoltaïques
Gestion des Eaux
Optimisez votre confort et réduisez votre consommation d'énergie avec notre pompe à chaleur. Chauffez votre maison de manière performante et durable.
Respirez un air sain grâce à notre ventilation double flux, qui filtre les polluants et régule l'humidité tout en récupérant la chaleur de l'air extrait.
Produisez de l'électricité propre avec nos panneaux photovoltaïques, réduisant votre facture énergétique et votre empreinte carbone.
Réduisez votre consommation d'eau avec notre système de gestion des eaux, qui collecte et redistribue l'eau de pluie pour une utilisation responsable.
Les Atouts :
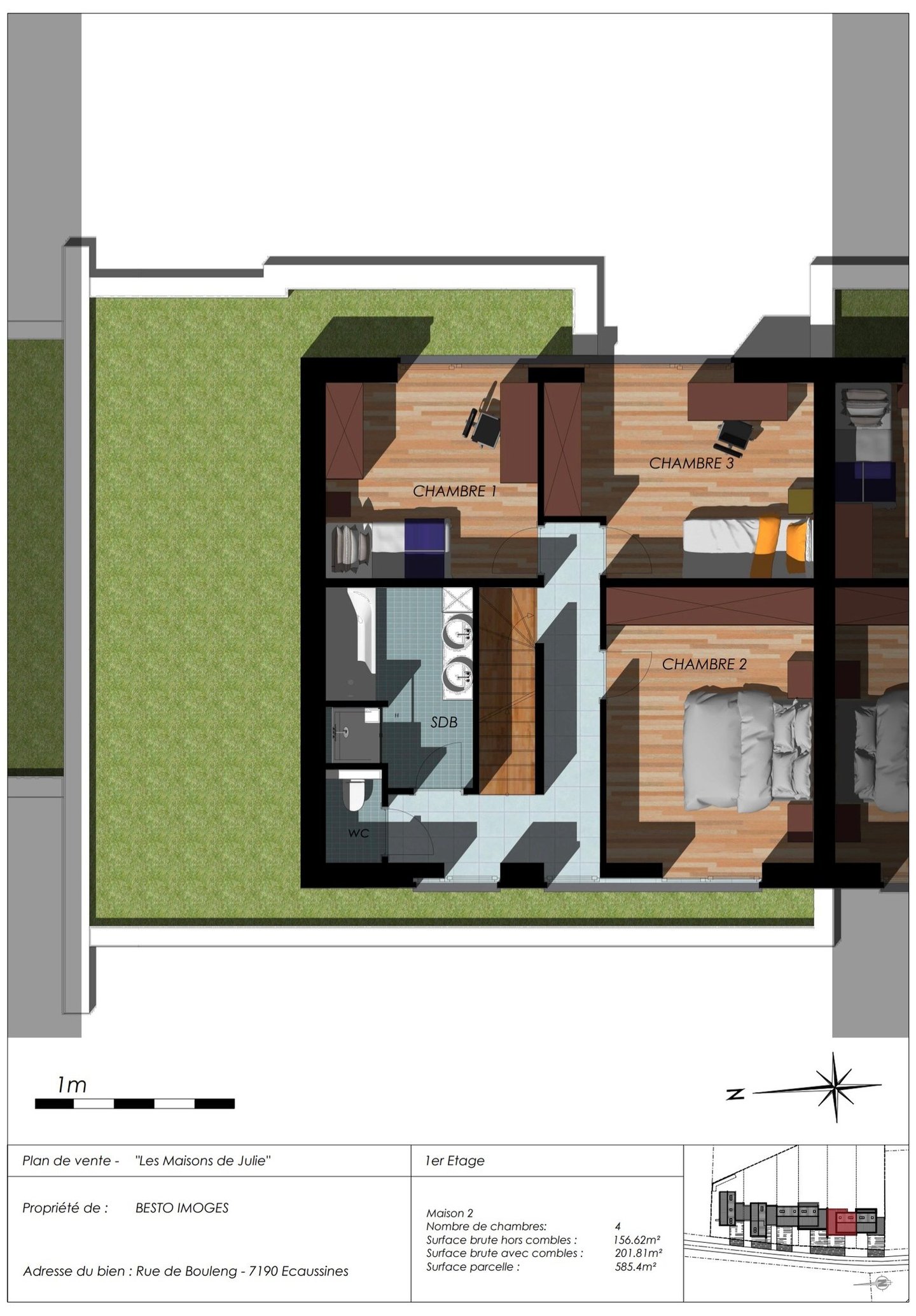
Plans Détaillés de la Maison N°2, imaginez-vous vivre aux Maisons Julie, où chaque Espace est conçu pour votre Confort.


Rez-de-Chaussée :


1er Etage :


Combles Aménageables ( Option ) :
Caractéristiques de la Maison :
Garage et Buanderie
Accédez facilement à votre domicile grâce à un garage spacieux offrant un stationnement sécurisé pour votre véhicule. De plus une buanderie pratique et bien agencée pour simplifier votre quotidien et optimiser votre espace de rangement.


Espaces de Vie
L'espace de vie des maisons Julie offre un cadre lumineux et convivial, idéal pour se détendre et partager des moments en famille. La salle à manger et le séjour sont agencés de manière à maximiser la circulation, créant une ambiance chaleureuse et moderne. Chaque détail est pensé pour allier confort au quotidien.
Salles d'Eau
Des salles d'eau élégantes, dotées de matériaux de qualité et de finitions soignées, offrant un confort optimal et une durabilité remarquable.
Chambres
Chaque chambre a été pensée pour offrir un environnement paisible et agréable, répondant aux besoins de chacun.
Les chambres de nos maisons bénéficient également d'un confort acoustique, assurant calme et tranquillité à tout moment.






Un Cadre de Vie Exceptionnel
Située au cœur du lotissement des maisons Julie, cette maison vous offre un cadre de vie paisible et verdoyant, tout en étant à proximité des commodités essentielles. Découvrez une qualité de vie unique, où chaque détail a été pensé pour votre confort et votre bien-être.


Qualité des Finitions
Découvrez un large choix d'aménagements pour votre future résidence, où chaque détail est pensé pour répondre à vos besoins. Profitez de possibilités de personnalisation sans limite, vous permettant de créer un intérieur qui reflète parfaitement votre style et vos préférences.
Que vous optiez pour un design moderne et élégant ou un espace chaleureux et convivial, notre flexibilité en matière de configurations et de finitions vous garantit une maison unique, à votre image.


Contactez-Nous :
Contactez-nous via le formulaire, notre équipe est à votre disposition pour répondre à vos questions !
Maitre d'oeuvre :







